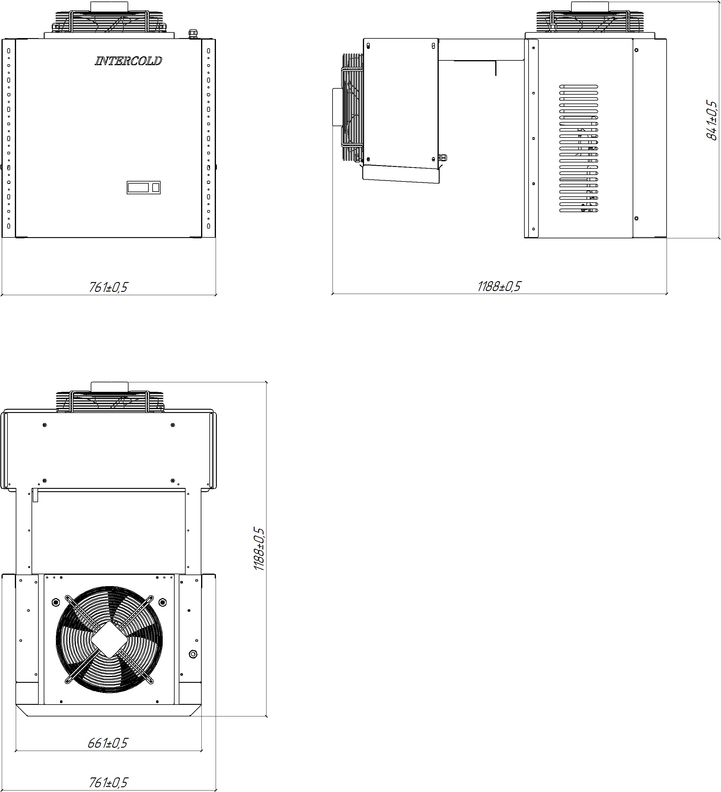
Низкотемпературный моноблок Intercold MLCM-443 FT используется на предприятиях общественного питания, торговли и пищевых производствах для поддержания температурного режима в холодильных камерах. Оборудование оснащено внешним блоком с установленным компрессором, автоматической оттайкой, пластинчато-трубчатым конденсатором, щитом управления с контроллером и силовой частью. Материал корпуса - крашенная оцинкованная сталь, материал воздухоохладителя - алюминий.
Технические характеристики:
- Зимняя опция: до -30 °С
- Температурный режим: от -25 до -15 °C
- Хладагент: R404a
- Тип запуска: прямой
- Ток max: 13.8 А
- Тип оттайки: электрическая
- Мощность оттайки: 3.9 кВт
- Компрессор: Tecumseh Europe, TAG2522Z
- Конденсатор:
- Конденсатор: Медно-пластинчатый
- Мощность вентилятора: 0.27 кВт
- Диаметр крыльчатки: 350 мм
- Расход воздуха: 13000 м3/ч
- Воздухоохладитель:
- Мощность вентилятора: 0.86 кВт
- Диаметр крыльчатки: 450 мм
- Количество вентиляторов: 2 шт
- Расход воздуха: 5340 м3/ч
- Шаг ребер: 5.5 мм
- Дальность струи: 10 м
- Дальность струи зависит от условий загрузки камеры, её параметров и расположения воздухоохладителя
Опционально доступно к заказу:
- Зимняя опция: до -10 °С
- Защита от аномалий в питающей сети
- Шумо- и виброизоляция
Внимание! Изображение товара может отличаться от оригинала и представлено в
ознакомительных целях.